

Bright 50m² Seminar Room with Patio Access in Arles Countryside
Arles, France
Conference / Meeting room / Coworking
30
28
7
Hosted by Veronika
Individual / private host
About the venue
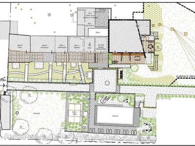
The seminar room at the mas is 50 m², bright and open with direct access to the patio. It is equipped with high-speed WiFi, a video projection system, an audio system and modular furniture. Underfloor heating and reversible air conditioning ensure optimum comfort all year round. The modularity of the space means it can be adapted for conferences and meetings as well as more informal workshops, with the option of installing equipment and furniture outside on the terrace or patio.
From 390€/Day
Guests
Max : 30
Accepted events
Capacity
Indoor capacity
Standing
30
Theatre
14
Banquet
14
Surface
50m2
Outdoor capacity
Standing
30
Seated
14
Surface
700m2
Maximum total capacity
Standing
30
Theatre
28
Banquet
14
Accommodation
Number of bedrooms
14
Number of rooms
7
Number of double beds per room
3
Number of single beds per room
8
Accomodation details:
You can reserve the farmhouse's 7 comfortable rooms for your team.
Check in at 3:00pm, check out at 11:00am
Equipments & features
Wifi
Whiteboard / Flip Chart
Video projector
Swimming pool
Air conditioning
Pro sound system
Sauna
Gym
In the countryside
Natural light
See the whole venue

Authentic Provencal Venue for Business Events & Retreats
Arles, France
|
30
|
0
|
489m2
€390
Catering
Dining Equipment
External caterers are allowed
Standard kitchen
Tableware
Cocktail tables
Tables
Chairs
Pricing
(Starting from)
Rental fees
Half day
The usual half-day time slots are from 8h to 12h or 14h to 18h
235 €
Day
From 09h00 to 18h00
390 €
Evening
Hours not specified by host. The usual evening time slots are from 18h to midnight
390 €
Day + Evening
Hours not specified by host. The usual time slots are from 9h to midnight
500 €
Policies & Rules

All events are covered by comprehensive AXA insurance for your peace of mind.
Learn more
See the whole venue

Authentic Provencal Venue for Business Events & Retreats
Arles, France
|
30
|
0
|
489m2
€390
Location
Arles, France
You may also like
From 390€/Day
Guests
Max : 30
Professional event? Need help?
Tell us about your event and we'll help you find the perfect setup
Human support
Professional security (contracts & insurance)
Fast, free quotes
.jpg?w=324&h=315&crop=smart-entropy)
.jpg?w=324&h=315&crop=smart-entropy)

.jpg?w=324&h=315&crop=smart-entropy)
.jpg?w=324&h=315&crop=smart-entropy)
